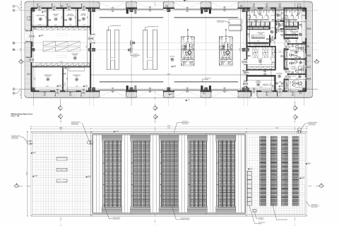
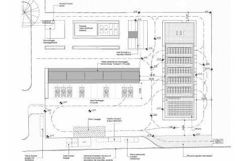
Officina meccanica e lavaggio mezzi militari
luogo
Grosseto (GR)
Collaborazione
E4E S.R.L. – G.EDI.S. S.R.L
servizi
Progettazione,
Coordinamento sicurezza
Coordinamento sicurezza
status
In corso
cliente
Ministero della Difesa-Direzione dei Lavori e del Demanio
Continuando la navigazione del sito acconsenti all'uso dei cookies. Maggiori informazioni
The cookie settings on this website are set to "allow cookies" to give you the best browsing experience possible. If you continue to use this website without changing your cookie settings or you click "Accept" below then you are consenting to this.





